Arquitectos Barcelona Vas Anguera
Català
Español
English
Contacto
Inicio
» Locales comerciales y oficinas
Reforma de fachada
Actuación estructural en edificio con patologias
Sala multicines
Centro de ocio familiar
Libreria Barcelona
Oficinas Enciclopedia Catalana
Concesionario de vehículos
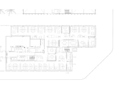
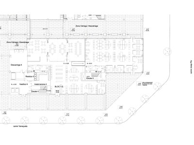
ADECUACIÓN DE LOCAL EN DISTINTAS PLANTAS PARA OFICINAS DE ENCICLOPEDIA CATALANA
C/ Veneçuela Nº 103-105. Barcelona
Superficie total 2.800,62 m2
PEM 91.426,29 €
Marzo 2006